![]()
Minimalne wymiary działki
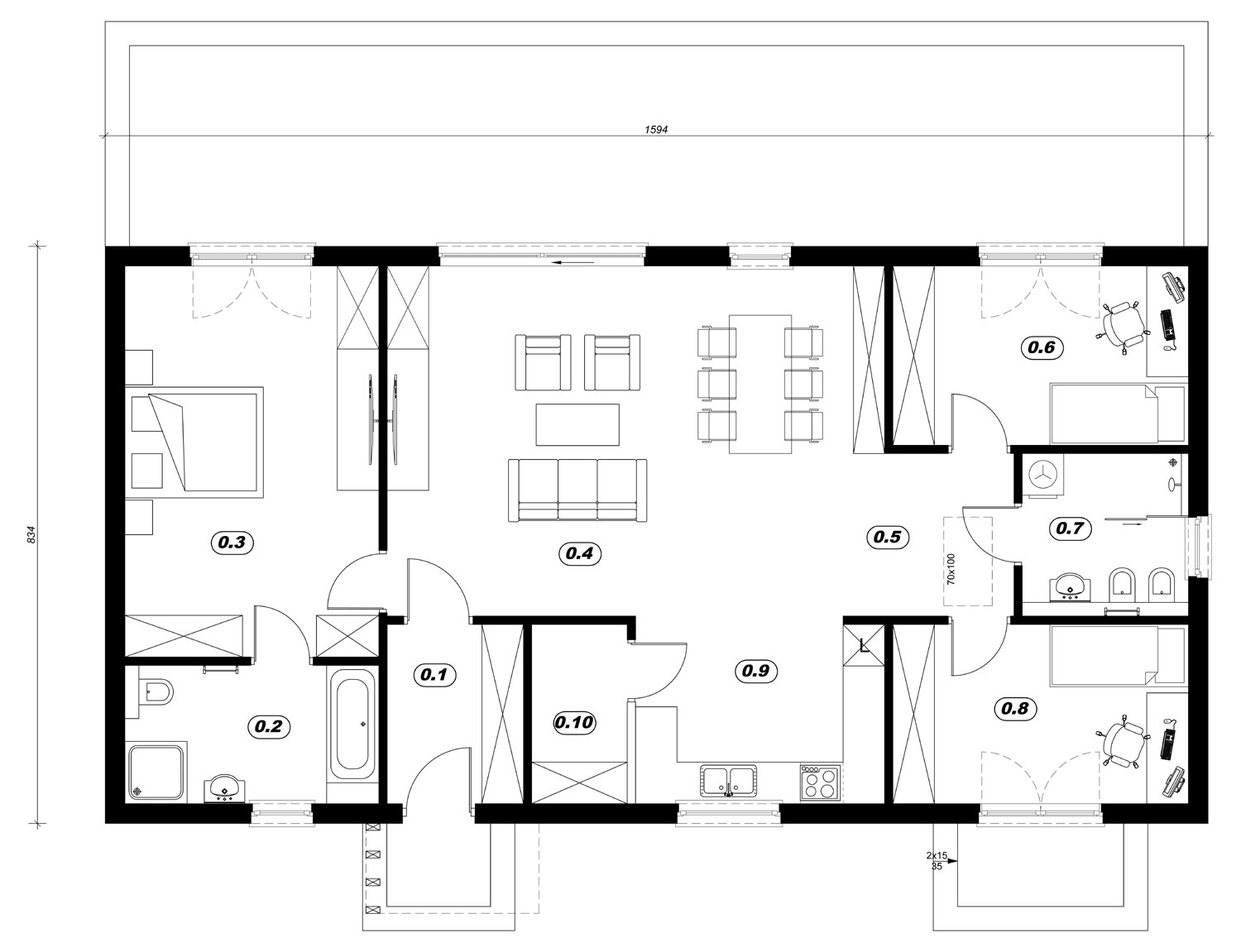
23,94 x 16,34 m²
![]()
Wysokość pomieszczeń
270 cm
![]()
Format domu
8,34 m x 15,94 m
![]()
2 łazienki
![]()
3 sypialnie
![]()
Powierzchnia użytkowa
114 m²
![]()
Powierzchnia zabudowy
132,94 m²
DOM LONG - Dom, który wyznacza nowy standard komfortu.
To więcej niż nowoczesny dom. To przestrzeń, która dojrzewa razem z Twoją rodziną, zapewniając jej wygodę, spokój i niezależność. Już na pierwszy rzut oka DOM LONG zachwyca przemyślaną formą i funkcjonalnym podziałem wnętrza: trzy przestronne sypialnie, dwie łazienki, naturalna drewniana konstrukcja i duży, jasny salon, który staje się sercem domowego życia.
To dom, w którym nie musisz iść na kompromisy. Dzieci mają swoje królestwo, a Ty - swoją przestrzeń na oddech. Dzięki dwóm oddzielnym strefom nocnym i komfortowym łazienkom przy sypialniach, każdy ma tu swoją prywatność. A kiedy rodzina spotyka się w salonie - wszystko nabiera ciepła, światła i radości.
Za tym komfortem stoi technologia:
- Izolacja pianą PUR zapewnia idealny mikroklimat o każdej porze roku.
- Fotowoltaika, rekuperacja i klimatyzacja obniżają rachunki i podnoszą jakość życia.
- Naturalne drewno wspiera zdrowy mikroklimat i sprawia, że dom oddycha razem z Tobą.
To dom gotowy na każdą pogodę i każdą przyszłość - komfortowy, energooszczędny i trwały, zaprojektowany tak, by służył przez pokolenia.
Parter
| Salon / Jadalnia | 40,60 m² |
| Kuchnia | 9,68 m² |
| Sypialnia 1 | 20,74 m² |
| Sypialnia 2 | 11,06 m² |
| Sypialnia 3 | 11,06 m² |
| Łazienka 1 | 5,06 m² |
| Łazienka 2 | 7,07 m² |
| Pomieszczenie gospodarcze | 3,39 m² |
| Wiatrołap | 5,10 m² |
| Strych | 42,00 m² |
| Powierzchnia zabudowy | 132,94 m² |
| Kubatura | 307,00 m³ |
| Wysokość budynku | 6,05 m |
| Kąt nachylenia dachu | 32° |
| Powierzchnia dachu | 140,00 m² |
| Wymiary budynku | 8,34 m x 15,94 m |

| Parametry działki | |
| Długość | 23,94 m |
| Szerokość | 16,34 m |

Ceny i specyfikacje w zależności od stanu zaawansowania budowy.
Zobacz, co zawiera stan surowy, deweloperski podstawowy i full premium.
Wyszczególnienie elementów domu
stan
surowy
119 999 zł
netto
deweloperski
podstawowy
355 700 zł
brutto
deweloperski
full premium
495 000 zł
brutto
FUNDAMENT - BUDYNEK W STANIE ZERO
- Ławy fundamentowe żelbetowe.
- Ściany fundamentowe w systemie IZODOM2000.
- Instalacja wod.-kan. wykonana pod posadzką i doprowadzona do punktów zasilania w wodę i odbioru ścieków.
- Izolacja pozioma termiczna - styropian EPS100 gr. 200 mm.
- Posadzka wykonana z betonu maszynowego (mixokret) 60 - 70 mm wzmocniona zbrojeniem rozproszonym, zatarta na gładko.
stan
surowy
deweloperski
podstawowy
deweloperski
full premium
KONSTRUKCJA
- Konstrukcja domu i dachu z drewna konstrukcyjnego z certyfikatem C24, drewno suszone komorowo, czterostronnie strugane.
- Wykonanie sufitu z płyty OSB 12 mm.
- Płytowanie sufitu płytą GK.
- Ściany zewnętrzne konstrukcyjne w konstrukcji szkieletowej wypełnione pianą PUR.
stan
surowy
deweloperski
podstawowy
deweloperski
full premium
ELEWACJA ZEWNĘTRZNA
- Wykonanie izolacji na elewacji o grubości 10 cm.
- Styropian zaciągnięty klejem z zatopioną siatką.
- Obsadzenie parapetów zewnętrznych z blachy w kolorze odpowiadającym kolorowi blachodachówki.
stan
surowy
deweloperski
podstawowy
deweloperski
full premium
TYNK DEKORACYJNY
- Tynk cienkowarstwowy, silikonowy w kolorze białym.
stan
surowy
deweloperski
podstawowy
deweloperski
full premium
IZOLACJA AKUSTYCZNA I TERMICZNA
- Izolacja ścian zewnętrznych pianą PUR 15 cm oraz styropianem 10 cm na zewnątrz.
- Izolacja stropu 25 cm pianą PUR.
- Izolacja ścian wew. 10 cm wełną mineralną.
- Okna posadowione na "ciepłym parapecie".
stan
surowy
deweloperski
podstawowy
deweloperski
full premium
OKNA I DRZWI
- Wszystkie okna 3 szybowe o wysokiej klasie energetycznej na profilu SALAMANDRA.
- Okno tarasowe 2 skrzydła otwierane.
- Kolor ram okiennych w kolorze białym.
stan
surowy
deweloperski
podstawowy
deweloperski
full premium
DACH I RYNNY
- Dach dwuspadowy o kącie nachylenia 32 stopnie.
- Położenie membrany dachowej.
- Wykonanie poszycia dachu z blachodachówki marki BLACHOTRAPEZ.
- Orynnowanie wysokiej jakości PCV do wyboru z dostępnej palety kolorów marki KROP.
stan
surowy
deweloperski
podstawowy
deweloperski
full premium
ŚCIANY WEWNĘTRZNE
- Konstrukcja ścian działowych wykonana w systemie suchej zabudowy na profilach stalowych lub drewnianych, wykonana wg projektu wykonawczego.
- Izolacja akustyczna ścian działowych wełną mineralną.
- Położenie folii paroizolacyjnej od wewnątrz.
- Obłożenie wszystkich ścian od wewnątrz płytami gipsowo-kartonowymi, w łazience wodno-odpornymi, bez szpachlowania spoin.
stan
surowy
deweloperski
podstawowy
deweloperski
full premium
OGRZEWANIE I CWU
- Ogrzewanie podłogowe elektryczne z zastosowaniem drutu akumulacyjnego na całej powierzchni z podziałem na strefy.
- Zbiornik do ciepłej wody marki ARISTON z Wi-Fi poj. 100 l.
- Aplikacja Aqua Ariston Net do zdalnego sterowania podgrzewaczem.
- Inteligentny wyświetlacz.
stan
surowy
deweloperski
podstawowy
deweloperski
full premium
KLIMATYZACJA
- Klimatyzacja ścienna montowana w salonie.
- Wyposażona w moduł Wi-Fi umożliwiając sterowanie ze smartfona.
- Urządzenie wykorzystujące przyjazny dla środowiska czynnik chłodniczy R32.
- Niskie zużycie energii, klasa energetyczna A++/A+
stan
surowy
deweloperski
podstawowy
deweloperski
full premium
REKUPERACJA
- Instalacja wykonana wg projektu wykonawczego, rozprowadzona do punktów nawiewu świeżego powietrza oraz poboru zużytego.
- Zakończenie wszystkich punktów nawiewu i czerpania powietrza anemostatami.
stan
surowy
deweloperski
podstawowy
deweloperski
full premium
CENTRALA REKUPERACYJNA
- Centrala rekuperacyjna ALNOR.
stan
surowy
deweloperski
podstawowy
deweloperski
full premium
INSTALACJA WODNO - KANALIZACYJNA
- Instalacja wykonana według projektu wykonawczego.
- Uzbrojenie rozdzielacza wody ciepłej i zimnej.
- Podprowadzenie na odpowiednią wysokość kształtek kanalizacyjnych do montażu armatury łazienkowej.
stan
surowy
deweloperski
podstawowy
deweloperski
full premium
INSTALACJA ELEKTRYCZNA
- Punkty oświetleniowe i gniazda elektryczne wykonane zgodnie z projektem wykonawczym.
- Kompletna tablica rozdzielacza oraz jej spięcie.
stan
surowy
deweloperski
podstawowy
deweloperski
full premium
FOTOWOLTAIKA
- Instalacja PV o mocy 8 kW
stan
surowy
deweloperski
podstawowy
deweloperski
full premium
Cena domu w wybranym poziomie wykonania
119 999 zł
netto
355 700 zł
brutto
495 000 zł
brutto
stan
surowy
deweloperski
podstawowy
deweloperski
full premium










